Salon Margret

20 people

Salon Margret

20 people

Salon Margret

20 people

Sustainable conference hotel by the water in Berlin Brandenburg

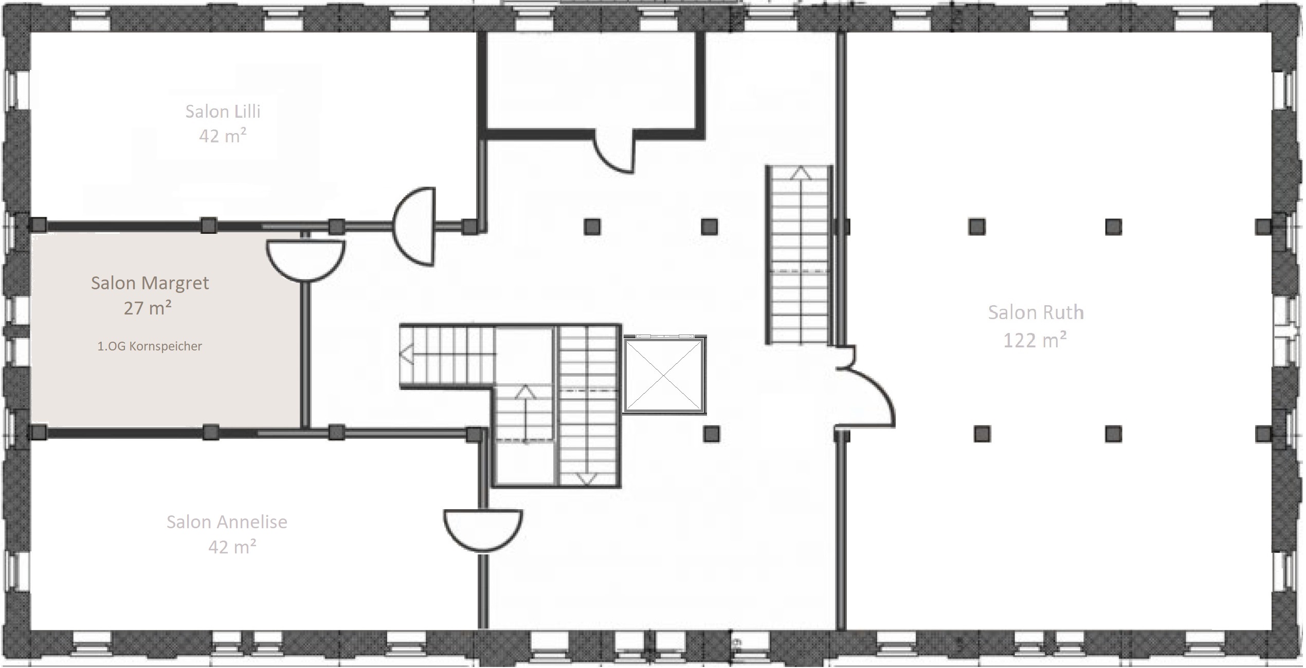
Salon Margret - 27 m2

One of our smallest salons in size is 27 m². It is located on the first floor of the Kornspeicher building. Ideal for small, intimate meetings. A waxed industrial concrete floor, an open wood and glass construction with historical mechanics give the room its special atmosphere. Salon Margret is located between the Salons Lilli and Annelise.

  • view: west, lake view
  • room height: 2.6 m
  • darkening, daylight
  • screen
  • open wooden construction, brick wall
  • historical drives and mechanics
  • no barrier-free access

Landgut Stober

inquire conference
room booking
virtual 3D tour

Inquire conference

Inquiry form conferences